Byggdetaljer 472.371
Publisert i juni 2013
ISSN 2387-6328

Kuldebroverdier. Vegg av lettklinkerblokker med isolasjon, dekke av lettklinkerbetong

472.371

Kuldebroverdier. Vegg av lettklinkerblokker med isolasjon, dekke av lettklinkerbetong

Juni 2013

Utgitt i samarbeid med
Enova

Generelt

01Innhold

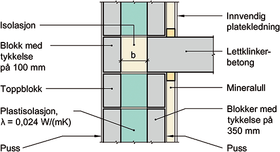
Fig. 01 a

Prinsipiell oppbygning av tilslutning mellom murt vegg og dekke av lettklinkerbetong
Blokktykkelse i veggen er på 250 eller 300 mm.

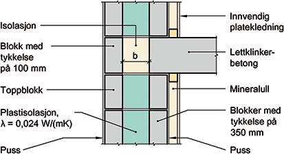
Fig. 01 b

Prinsipiell oppbygning av tilslutning mellom murt vegg og dekke av lettklinkerbetong
Blokktykkelse i veggen er på 350 mm

Denne anvisningen inneholder kuldebroverdier, ψ (W/(mK)), for tilslutning mellom vegg av murte blokker og dekke av lettklinkerbetong. Blokkene har vanger av lettklinkerbetong og kjerne av plastisolasjon. Se fig. 01 a og fig. 01 b.

Bruk av kuldebroverdier, forutsetninger for beregningene og materialegenskaper er beskrevet i Byggdetaljer 472.051 Kuldebroverdier for tilslutninger mellom bygningsdeler. Grunnlag for beregninger. Eventuelle spesielle betingelser er oppgitt i pkt. 1, pkt. 2 og pkt. 4.

02Oppbygning av bygningsdeler i tilslutningen

Oppbygningen av bygningsdelene i de forskjellige tilslutningene gir nødvendig informasjon for å bestemme kuldebroverdier. Nødvendig oppbygning for å dimensjonere bæreevne, lydisolering og brannsikkerhet osv. er vist i andre anvisninger i Byggforskserien.

Materialet i dette dokumentet er omfattet av åndsverklovens bestemmelser. Uten særskilt avtale med SINTEF er enhver eksemplarfremstilling, tilgjengeliggjøring eller spredning utover privat bruk bare tillatt i den utstrekning det er hjemlet i lov eller tillatt gjennom avtale med Kopinor, interesseorgan for rettighetshavere til åndsverk. Utnyttelse i strid med lov eller avtale kan medføre erstatningsansvar, og kan straffes med bøter eller fengsel.

Juni 2013 ISSN 2387-6328



For å lese mer må du kjøpe tilgang.

BFS
1389,08 kr/mnd

Byggforskserien komplett

Delserie Byggdetaljer
729,92 kr/mnd

Delserie Byggdetaljer

Enkeltanvisning
kr 280,00 for 12 mnd.

Enkeltanvisning

Alle abonnement faktureres 12 måneder forskuddsvis.

Se alle priser her

Andre abonnement

Prøveabonnement
Gratis

Prøveabonnement

Studentabonnement
fra kr 349,00

Studentabonnement


Les mer om Byggforskserien

Allerede abonnent?   Logg inn